STORIE HOUSE規格住宅
シンプルだけど心地いい、
さまざまなバリエーション
シンプルなカタチに、多彩な魅⼒を詰め込んだ10タイプ。
⽬指したのは、敷地の制約に負けない対応⼒と
暮らしの変化にこたえる柔軟性。
コンパクトでもそれを感じさせない居住空間がここにあります。
PLAN 1クローズキッチンスタイル
[⻑期優良住宅+認定低炭素住宅+省令準耐⽕仕様]
耐震等級3/省エネ_5地域/積雪_⼀般地域
1階床面積:52.99m²(16.03坪)
建築面積:52.99m²(16.03坪)
2階床面積:48.67m²(14.72坪)
建築面積:101.66m²(30.75坪)
1階 間取り
2階 間取り
PLAN POINTプラン1のポイント
-
1F POINTAKitchen|キッチン
独立したキッチン空間としていますが、LDと直結した動線となっていますので、ほどよいつながりを感じることができます。
-
1F POINTBCloset|クローゼット
エントランス横には大きめのクローゼットを配置。デイリーユースのコートやゴルフバッグなどの収納にも便利です。
-
1F POINTCWashroom|洗面所
1.5坪の広々とした洗面所は、収納を配置して、タオルや着替えなどをすぐに使える場所に仕舞えます。
-
2F POINTDInside garden|インサイドガーデン
単なるバルコニーとしてだけではなく、半外空間を愉しむ場としても活用できます。インサイドガーデンと洋室の窓を開け放つ心地よい風が流れ込みます。
-
2F POINTEWestern style room|洋室
2階に3つの個室を配したプラン。全部屋にクローゼットを採用するなど、プライベート空間としての使い勝手にも配慮しています。
-
2F POINTFCloset|クローゼット
間口の広いウォークインクローゼットは収納物が一目でわかり、使いやすさは抜群。季節物の洋服や小物など、入れ替え作業もラクラクです。
PLAN 2オープンキッチンスタイル
(ゾーン収納&分散配置)
[⻑期優良住宅+認定低炭素住宅+省令準耐⽕仕様]
耐震等級3/省エネ_5地域/積雪_⼀般地域
1階床面積:52.99m²(16.03坪)
建築面積:52.99m²(16.03坪)
2階床面積:48.67m²(14.72坪)
建築面積:101.66m²(30.75坪)
1階 間取り
2階 間取り
PLAN POINTプラン2のポイント
-
1F POINTAKitchen|キッチン
独立したキッチン空間としていますが、LDと直結した動線となっていますので、ほどよいつながりを感じることができます。
-
1F POINTBCloset|クローゼット
エントランス横には大きめのクローゼットを配置。デイリーユースのコートやゴルフバッグなどの収納にも便利です。
-
1F POINTCWashroom|洗面所
1.5坪の広々とした洗面所は、収納を配置して、タオルや着替えなどをすぐに使える場所に仕舞えます。
-
2F POINTDInside garden|インサイドガーデン
単なるバルコニーとしてだけではなく、半外空間を愉しむ場としても活用できます。インサイドガーデンと洋室の窓を開け放つ心地よい風が流れ込みます。
-
2F POINTEWestern style room|洋室
2階に3つの個室を配したプラン。全部屋にクローゼットを採用するなど、プライベート空間としての使い勝手にも配慮しています。
-
2F POINTFCloset|クローゼット
間口の広いウォークインクローゼットは収納物が一目でわかり、使いやすさは抜群。季節物の洋服や小物など、入れ替え作業もラクラクです。
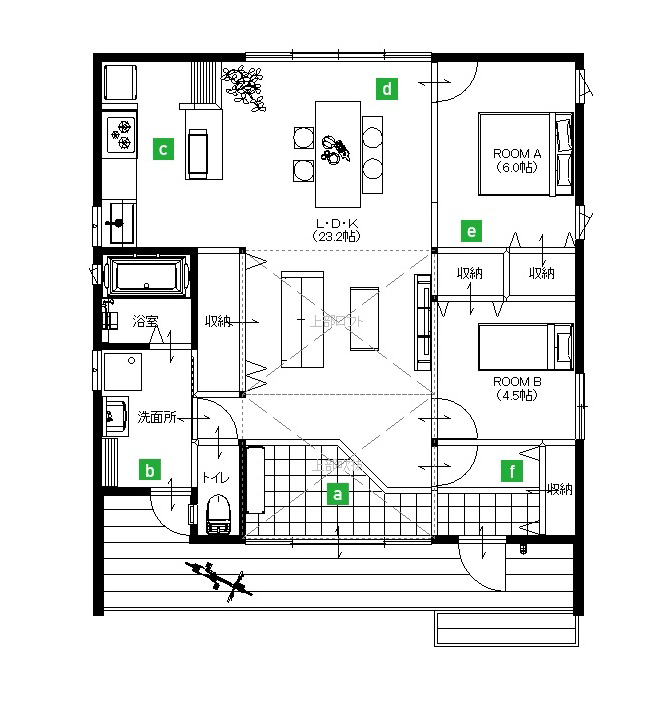
PLAN HIRAYA愉しむ平屋スタイル
[⻑期優良住宅+認定低炭素住宅+省令準耐⽕仕様]
耐震等級3/省エネ_5地域/積雪_⼀般地域
1階床⾯積:81.15m²(24.55坪)
建築⾯積:81.15m²(24.55坪)
ロフト⾯積:9.93m²(3.01坪)
延床⾯積:91.08m²(27.56坪)
1階 間取り
PLAN POINTプランHIRAYAのポイント
-
1F POINTA
内部の土間は、趣味や生活シーンに合わせて様々な使い方ができます。土間空間と軒下空間は、開口部を開け放つことで一体的な空間として使用でき、室内外のつながりを深めています。
-
1F POINTB
洗面室は軒下空間と隣接しています。「洗う・干す」の理想的な作業動線となっています。
-
1F POINTC
キッチンにはアイランドカウンターを配置し、作業効率と収納性を確保。キッチン横のミニパントリーには、散在しがちな小物類を一か所にまとめてしまうことが可能です。
-
1F POINTD
2方向に開口を設けたLDKは、内と外を「TUBE」でつなぐことにより、開口部からの視線は広がり、心地よい空気の流れを感じることができます。
-
1F POINTE
居室、クローゼットの内部壁は大半が構造耐力に影響しない後間仕切壁です。家族構成やライフステージの変化にも対応できます。
-
1F POINTF
エントランス横には、大きなシューズクローゼットを配置。ゴルフバッグやコート等もここに収納されることを想定しています。
その他様々なバリーションがございます!
詳しくはSTORIE HOUSEへ
お問い合わせください
WORKS施工事例ご紹介
光と風を取り込み、デザイン性の高いストリエハウス。
あなたの暮らしの理想をカタチにします。


